House Plan 2405




House Plan 2405
Discover Timeless Elegance in House Plan 2405
A Stunning Single-Story Retreat: Step into the perfect blend of classic charm and modern comfort with this exquisite 3-bedroom, 2-bath home featuring a spacious 2-car garage and versatile bonus room. Designed for effortless living and unforgettable entertaining, this home showcases a striking curb appeal that turns heads the moment you arrive.
Exterior Highlights: The front elevation presents a warm, inviting façade with clean white brick, elegant stone accents on the right wing, and a commanding dark shingle roof. Graceful columns frame the covered front porch, while the dormer window and thoughtfully placed lighting create a welcoming glow at dusk complete this picture-perfect setting ideal for creating lasting first impressions.
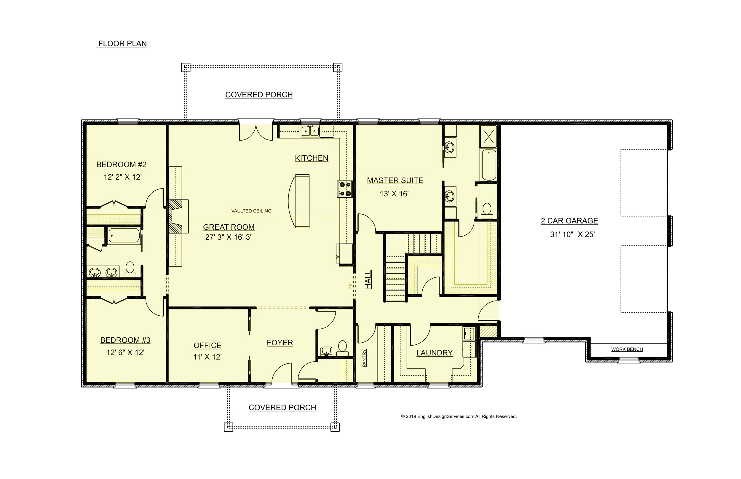
Interior Layout & Living Spaces: Spanning an open, flowing floor plan, this home centers around a dramatic Great Room with soaring vaulted ceilings that flood the space with natural light and a sense of grandeur. Perfect for family gatherings or relaxed evenings, it seamlessly connects to the gourmet Kitchen, complete with a large island, ample counter space, and a convenient pantry.
Master Suite: A private retreat with generous proportions, an en-suite bath, and walk-in closet—your personal sanctuary after a long day.
Secondary Bedrooms: Two well-sized bedrooms offer flexibility for family, guests, or a home office setup.
Dedicated Office: Quiet space for remote work, studying, or creative pursuits. Additional
Conveniences: A dedicated laundry room, foyer entrance, and multiple covered porches for outdoor enjoyment.
The Bonus Room provides exciting potential to transform it into a media room, home gym, playroom, or fourth bedroom to suit your lifestyle.
Why You'll Love This Home: Whether you're hosting friends in the expansive great room and kitchen, unwinding on the covered porches, or utilizing the oversized 2-car garage with workbench space, House Plan 2405 delivers functionality, style, and room to grow. With its single-story design, it offers easy accessibility without sacrificing sophistication. This plan is perfect for families, empty-nesters, or anyone seeking a low-maintenance dream home with high-end appeal. Ready to build your future? House Plan 2405 combines beauty, practicality, and timeless design into one unforgettable package. Contact us today to learn more or customize this plan to make it uniquely yours!