House Plan 1408


House Plan 1408
House Plan 1408 Charming Single-Story Brick Home
This beautiful 3-bedroom, 2-bath single-story home offers the perfect blend of timeless curb appeal and modern, functional living. Designed for comfort and efficiency, Plan 1408 is ideal for families, retirees, or first-time homebuyers looking for low-maintenance living with stylish details.
Exterior Highlights Striking front elevation featuring warm brick with elegant stone accents around the entry and gables, sophisticated dark charcoal/black trim, windows, and garage doors that create beautiful contrast Substantial dark shingled roof with generous overhangs Welcoming covered front porch and spacious 2-car garage.
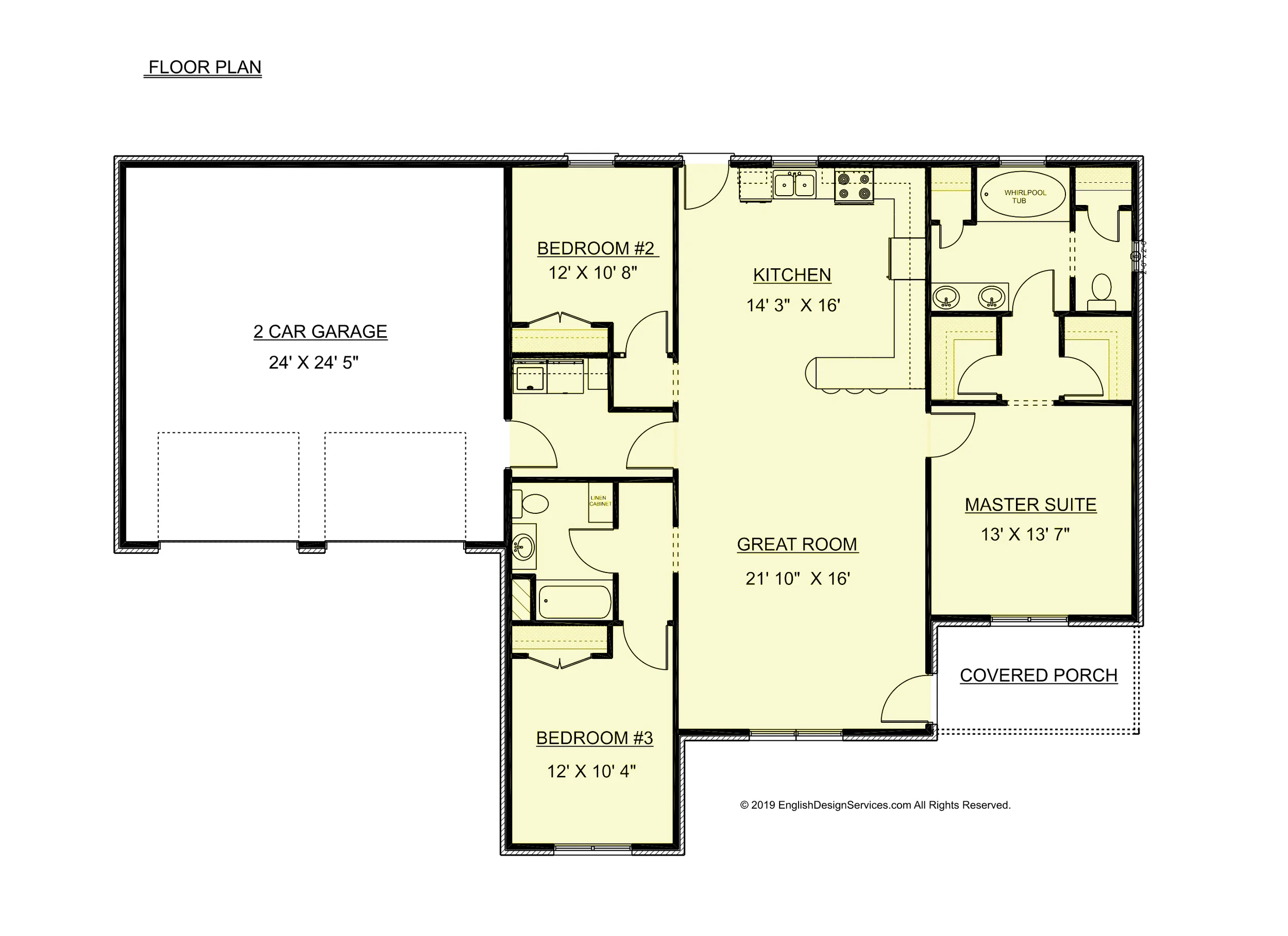
Floor Plan Features Open-concept living: The spacious living room flows seamlessly into the kitchen, creating a bright, inviting heart of the home Master Suite: Private master bedroom with generous bath and walk-in closet.
Two additional bedrooms: Comfortable secondary bedrooms with easy access to a shared full bath practical layout.
Efficient kitchen: With ample cabinetry and workspace, plus a convenient covered rear porch perfect for outdoor dining and relaxation.
Total living area: Approximately 1,408 sq ft This thoughtfully designed plan delivers excellent flow, natural light, and timeless architectural details that will never go out of style. Built with quality materials and a classic brick exterior, it’s a home that looks impressive from the street and feels warm and welcoming inside. Perfect for narrow to moderate lots, this plan is ready to build and customize to your preferences.